Ir al contenido principal

Proyecto de obra nueva para 8 viviendas en Vallecas

| apuntoarquitectura

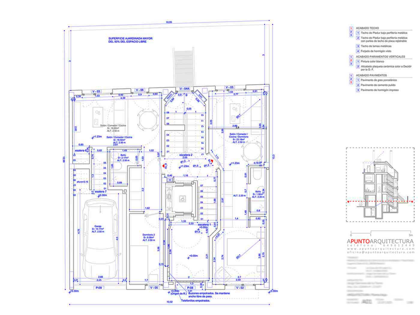
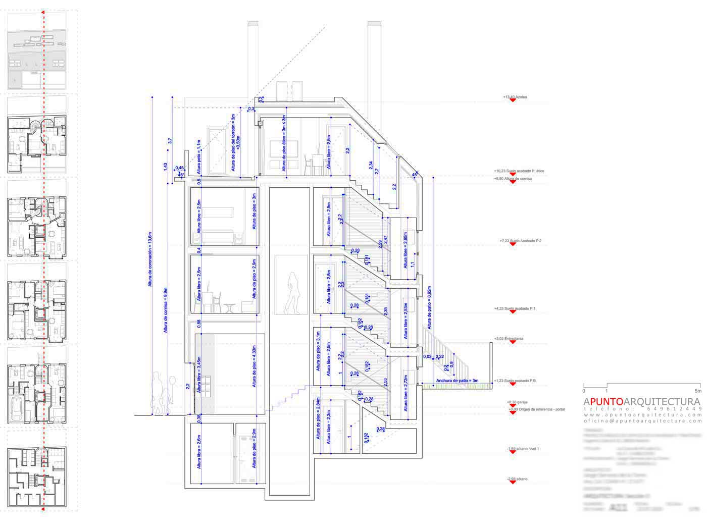
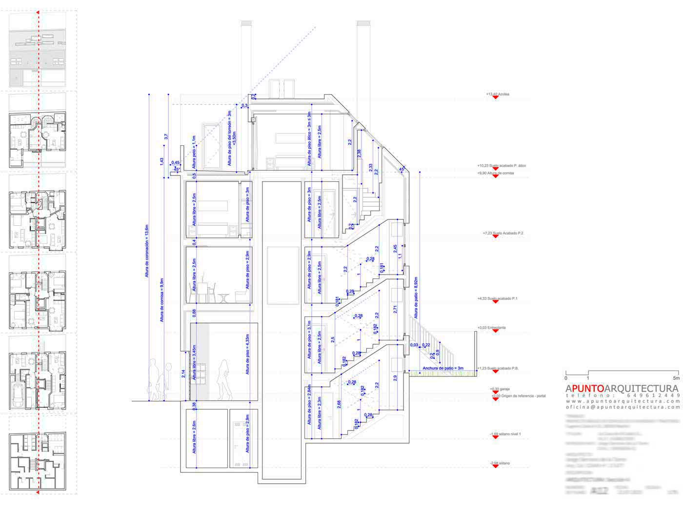
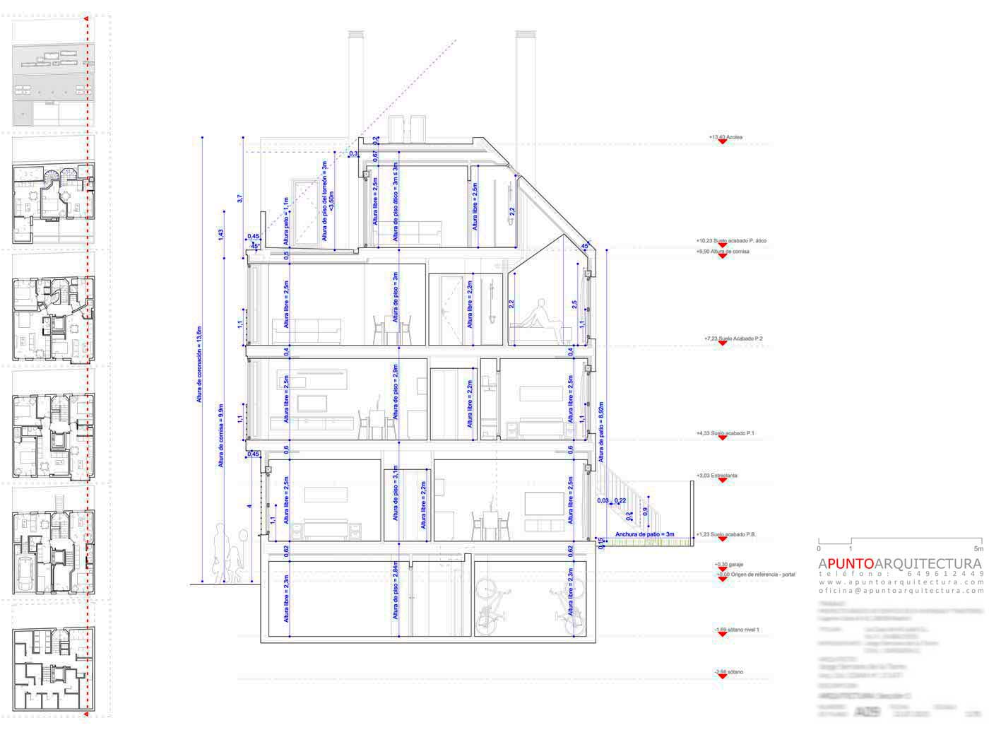
Proyecto de obra nueva para 8 viviendas en Vallecas. El reto es conseguir el máximo partido a una parcela de 10×12 m. consiguiendo 8 viviendas repartidas en planta baja primera, segunda y ático.

El edificio se distribuye en dos viviendas en planta baja con jardín y dos áticos dúplex con terrazas; dos viviendas en planta primera y dos estudios en planta segunda. Aunque el edificio dispone de una exención de garaje el ayuntamiento pide una plaza que se dispone con acceso directo a uno de los bajos.

Previamente a la licencia, necesitamos tramitar proyecto de agrupación puesto que se trata de dos parcelas independientes que se han de agregar en una única de forma previa a la licencia de obra nueva.

Además de la agregación es necesario tramitar exención de aparcamiento y nueva acometida de saneamiento.

En la planta sótano se colocan trasteros para todas las viviendas además de cuartos de instalaciones, basuras y bicicletas.

Proyecto de obra nueva para 8 viviendas en Vallecas con calificación energética A.

Se trata de un edificio de  consumo casi nulo que combina los sistemas de aerotermia con suelo radiante/refrigerante un alto nivel de aislamiento con sistema de fachada SATE y una ventilación mecánica controlada para alcanzar una etiqueta energética A.

8 viviendas en Vallecas (Madrid)
8 Viviendas En Vallecas (Madrid)
8 Viviendas En Vallecas (Madrid)
8 Viviendas En Vallecas (Madrid)
8 Viviendas En Vallecas (Madrid)
8 Viviendas En Vallecas (Madrid)
8 Viviendas En Vallecas (Madrid)
8 Viviendas En Vallecas (Madrid)
8 Viviendas En Vallecas (Madrid)
8 Viviendas En Vallecas (Madrid)
8 Viviendas En Vallecas (Madrid)
8 Viviendas En Vallecas (Madrid)
8 Viviendas En Vallecas (Madrid)
8 Viviendas En Vallecas (Madrid)
8 Viviendas En Vallecas (Madrid)
8 Viviendas En Vallecas (Madrid)
8 Viviendas En Vallecas (Madrid)
8 Viviendas En Vallecas (Madrid)
8 Viviendas En Vallecas (Madrid)
8 Viviendas En Vallecas (Madrid)
8 Viviendas En Vallecas (Madrid)
8 Viviendas En Vallecas (Madrid)

Ficha de Proyecto

Estado: Obra
Año: 2024
Cliente: Privado
Arquitecto: Jorge Serrano
Equipo: Alicia Espinosa, Ignacio Rejos, Fanny Chen, Daniel Vázquez

Noticias

Las últimas noticias y novedades

Felices Fiestas 2025

Versión web   a p u n t o a r q u i t e c t u r a   Ha sido un año muy intenso, terminamos 2024 siendo 3 y vamos a empezar 2026 siendo 6! Entre medias, mucho trabajo, muchos proyectos, muchas obras, muchas visitas, muchos certificados y planos y presupuestos; y un […]
Deducciones en la renta por mejoras energéticas en vivienda

Deducciones en la renta por mejoras energéticas en vivienda

Conoce las tres nuevas deducciones de la renta por las cantidades invertidas en las obras de tu vivienda a las que te puedas acoger. La publicación del Real Decreto-ley 19/2021, contempla tres supuestos de ayudas para obras de mejora en vivienda siempre que las obras llevadas a cabo conlleven una mejora en la eficiencia energética […]
La_Arquitectura_de_los_Arquitectos

La Arquitectura de los Arquitectos

Nuestra Casa Isajo forma parte de la Exposición organizada por el COAM que tendrá lugar del 2 al 30 de Junio en la sala Gutierrez Soto, «La Arquitectura de los Arquitectos» Esta exposición pretende difundir la arquitectura madrileña y el trabajo del arquitecto como algo cercano y útil a la sociedad.El objetivo de esta convocatoria […]
Licencias y Declaraciones Responsables Urbanísticas de Madrid, OLDRUM

PUBLICACIÓN DE LA ORDENANZA DE LICENCIAS Y DECLARACIONES RESPONSABLES URBANÍSTICAS DE MADRID (OLDRUM)

Con fecha de 17 de Mayo, ha sido publicada en el BOCM de hoy 17/05 la Ordenanza de Licencias y Declaraciones Responsables Urbanísticas de Madrid (OLDRUM) y entrará en vigor en 1 MES.La OLDRUM unifica las dos ordenanzas existentes actualmente (OMTLU y OAAE) y las ECUs como tramitarán Declaraciones Responsables y Licencias del uso residencial (viviendas). Las principales novedades son: Ampliación del ámbito de actuación de las […]

Nueva ordenanza de terrazas de hostelería de Madrid

En enero de 2022 entró en vigor la Nueva ordenanza de terrazas y veladores de Madrid, Ordenanza 1/2022, de 25 de enero, por la que se modifica la Ordenanza de Terrazas y Quioscos de Hostelería y Restauración, de 30 de julio de 2013. A continuación vamos a explicar las principales directrices y cambios que incorpora […]
Certificado Obra Nueva Antigua

Certificado de Obra Nueva Antigua

Es muy común encontrarse con el certificado de obra nueva antigua cuando se recibe una herencia y en escritura solo consta el terreno, no la construcción de la casa, o cuando se va a vender una vivienda que tiene una ampliación que no consta en la escritura. ¿Certificado Final de obra? Para que en la […]
Certificado de Superficie

Certificado de Superficie

¿Qué es el certificado de superficie? El certificado de superficie es un documento cuya misión es la de certificar la superficie exacta que tiene un inmueble (vivienda, oficina, local, nave, garaje, trastero o parcela) así como su compartimentación y sus usos. Para su realización por tanto, es necesario la medición del inmueble. Suele realizarse para […]
Terrazas de bar en Madrid por Coronavirus

Medidas de apoyo para la instalación de terrazas de bar en Madrid por Coronavirus

El 14 de Mayo, como resultado de la crisis y el estado de alarma decretado a causa de la COVID-19 el ayuntamiento de Madrid aprueba un conjunto de medidas de apoyo para la instalación de terrazas de bar en Madrid por Coronavirus, por las que se permite: Ampliar la superficie de una terraza con licencia. […]
que licencia necesito para reformar mi casa

Qué licencia necesito para reformar mi casa?

Cuando pensamos en realizar una reforma en casa, la primera pregunta que nos puede venir a la cabeza será: ¿puedo hacer obras en casa sin licencia? ¿necesito licencia para reformar mi casa?. En este artículo vamos a hablar sobre qué licencia necesito para reformar mi casa. A continuación vamos a ver los tipos de licencias […]
Licencia Vivienda Turística Apuntoarquitectura

Licencia de Vivienda Turística en Madrid

En este artículo vamos a hablar de los trámites necesarios para conseguir licencia de vivienda turística en Madrid (ciudad). Antecedentes, Regulaciones Comunidad y Ayuntamiento. Para explicar qué requisitos son necesarios para conseguir una licencia de vivienda turística en madrid (ciudad) es necesario hablar de la regulación que sobre la vivienda turística ha realizado tanto ayuntamiento […]
    Resumen de privacidad

    Esta web utiliza cookies para que podamos ofrecerte la mejor experiencia de usuario posible. La información de las cookies se almacena en tu navegador y realiza funciones tales como reconocerte cuando vuelves a nuestra web o ayudar a nuestro equipo a comprender qué secciones de la web encuentras más interesantes y útiles.